大連華晋科技有限公司
 
  ホーム > 業務実績 > 機械製作図
 
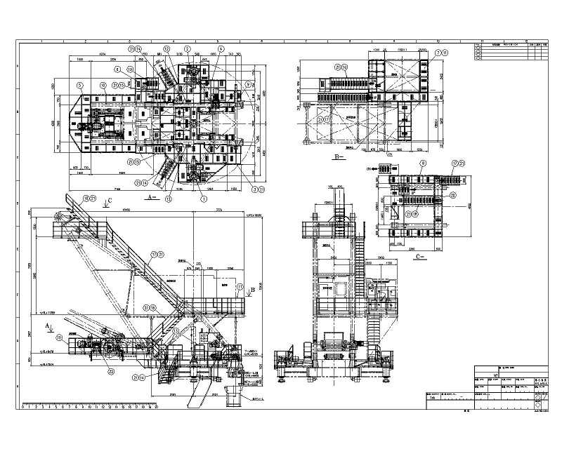
計画図、製作図、仮組図、3D図面まで可能です。得意分野はスタッカー・リクレーマ、コンベア、ロードヘッダー機械など大型機械の図面作図及び生産です。下記内容は 弊社で図面制作を行い、生産、納入した中の一例です。
過去作品事例

 

 

 

 

 

 

 
   
   
  Copyright © 2004 DHJ. All Rights Reserved